1670 Pequod Cres Gabriola Island, British Columbia V0R 1X5
$449,000
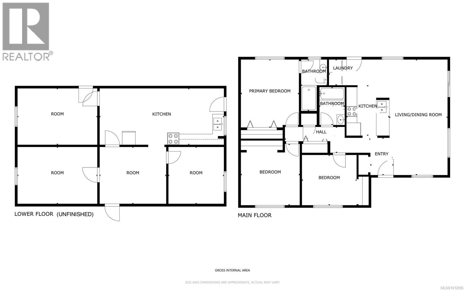
This 3-bedroom, 2-bathroom home built in 1994 sits on a sunny, level .46-acre property just a short walk to the beach. The 1164 square foot home offers plenty of potential, with a lower level that could be further developed, and a usable yard that’s well-suited for gardening or creating your own outdoor retreat. On the private property you’ll also find a few outbuildings. While the house and sheds will require work, the true value is in the land, location, and opportunity to build equity in a sought-after Gabriola setting. Known as the “Isle of the Arts,” Gabriola offers a relaxed island lifestyle, beautiful beaches, forested trails, and a welcoming community—all just a short ferry ride from Nanaimo. All information to be verified by the buyer. (id:48643)
Property Details
| MLS® Number | 1012056 |
| Property Type | Single Family |
| Neigbourhood | Gabriola Island |
| Features | Level Lot, Other |
| Parking Space Total | 3 |
Building
| Bathroom Total | 2 |
| Bedrooms Total | 3 |
| Constructed Date | 1994 |
| Cooling Type | None |
| Heating Fuel | Electric |
| Heating Type | Baseboard Heaters |
| Size Interior | 2,424 Ft2 |
| Total Finished Area | 1164 Sqft |
| Type | House |
Parking
| Stall |
Land
| Acreage | No |
| Size Irregular | 20038 |
| Size Total | 20038 Sqft |
| Size Total Text | 20038 Sqft |
| Zoning Description | Srr |
| Zoning Type | Unknown |
Rooms
| Level | Type | Length | Width | Dimensions |
|---|---|---|---|---|
| Main Level | Bedroom | 11'6 x 15'9 | ||
| Main Level | Ensuite | 3-Piece | ||
| Main Level | Bedroom | 12 ft | 12 ft x Measurements not available | |
| Main Level | Bathroom | 4-Piece | ||
| Main Level | Bedroom | 10'10 x 9'11 | ||
| Main Level | Entrance | 7 ft | Measurements not available x 7 ft | |
| Main Level | Laundry Room | 6 ft | 5 ft | 6 ft x 5 ft |
| Main Level | Kitchen | 10'5 x 8'8 | ||
| Main Level | Dining Room | 12 ft | Measurements not available x 12 ft | |
| Main Level | Living Room | 15'2 x 11'9 |
https://www.realtor.ca/real-estate/28788668/1670-pequod-cres-gabriola-island-gabriola-island
Contact Us
Contact us for more information
Tina Lynch
www.gabriolarealestate.com/
www.linkedin.compubdirtinalynch/
1 - 575 North Road
Gabriola Island, British Columbia V0R 1X3
(250) 247-2088
(187) 742-2845
royallepagegabriola.ca/
www.facebook.com/royallepage
www.linkedin.com/company/royal-lepage
twitter.com/royal_lepage
Guy Parcher
www.gabriolarealestate.com/
1 - 575 North Road
Gabriola Island, British Columbia V0R 1X3
(250) 247-2088
(187) 742-2845
royallepagegabriola.ca/
www.facebook.com/royallepage
www.linkedin.com/company/royal-lepage
twitter.com/royal_lepage




























