2659 6th Ave Port Alberni, British Columbia V9Y 2H7
$529,000
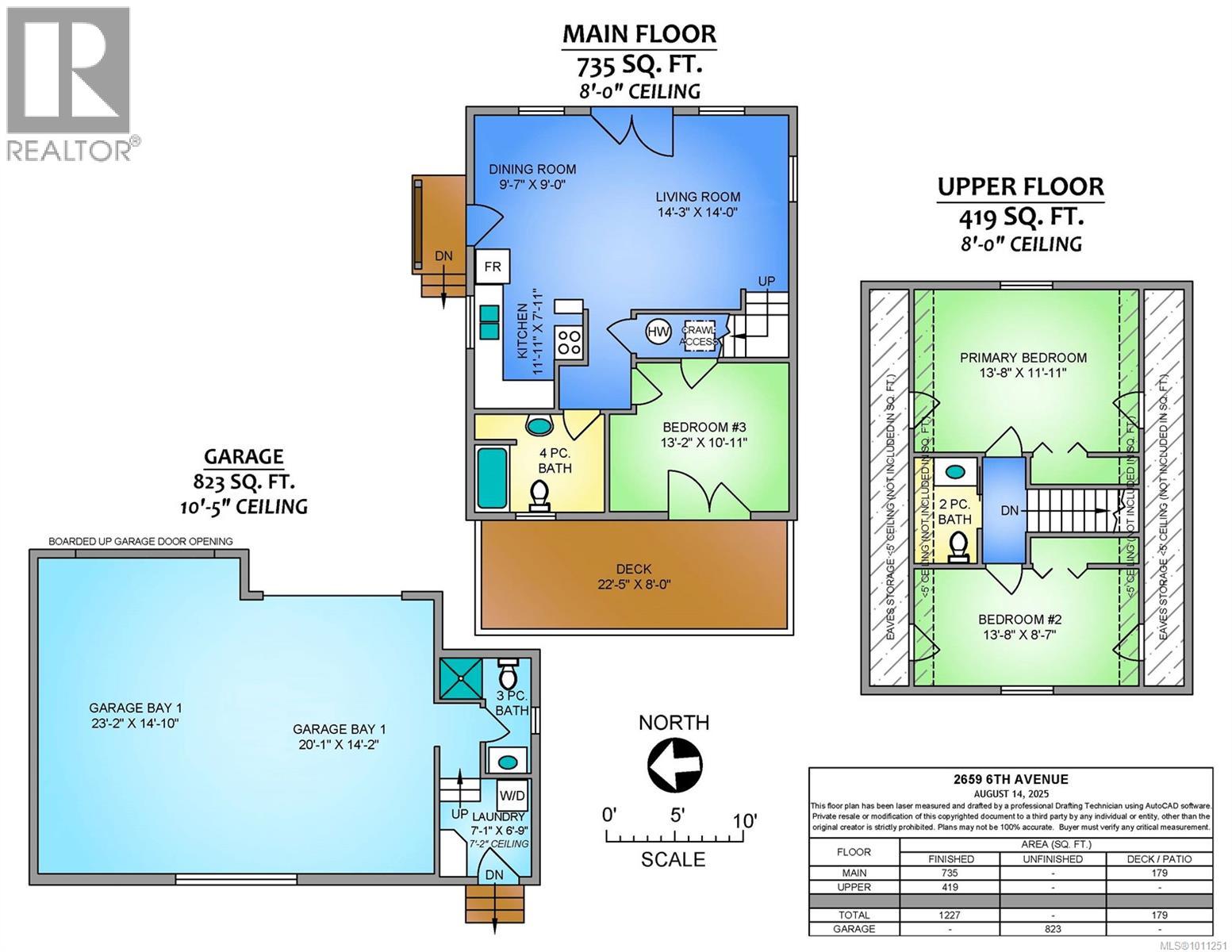
Welcome to 2659 6th Ave in Port Alberni! Step inside this bright and spacious 3-bedroom, 2-bathroom home and be greeted by an open-concept living area, ideal for entertaining and family gatherings. The kitchen features ample counter space and cabinetry. The main flor also boasts a 4 piece bathroom and a bedroom/flex room with access to the deck. Moving upstairs you will find two great sized bedrooms and a 2 piece bathroom. One of the standout features of this property is the detached garage, providing secure parking, extra storage, or a fantastic workshop space for your hobbies and projects. The garage also has extra laundry hookup and a full 3 piece bathroom Located in a desirable Port Alberni neighborhood, this home is close to local amenities, schools, and parks. Don't miss this opportunity to own a home that's ready for you to move in and enjoy! Schedule your showing today. (id:48643)
Property Details
| MLS® Number | 1011251 |
| Property Type | Single Family |
| Neigbourhood | Port Alberni |
| Parking Space Total | 5 |
| Plan | Vip197b |
Building
| Bathroom Total | 2 |
| Bedrooms Total | 3 |
| Constructed Date | 2012 |
| Cooling Type | None |
| Heating Type | Baseboard Heaters |
| Size Interior | 2,050 Ft2 |
| Total Finished Area | 1227 Sqft |
| Type | House |
Land
| Acreage | No |
| Size Irregular | 5482 |
| Size Total | 5482 Sqft |
| Size Total Text | 5482 Sqft |
| Zoning Description | R |
| Zoning Type | Residential |
Rooms
| Level | Type | Length | Width | Dimensions |
|---|---|---|---|---|
| Second Level | Bedroom | 13'8 x 8'7 | ||
| Second Level | Bathroom | 2-Piece | ||
| Second Level | Primary Bedroom | 13'8 x 11'11 | ||
| Main Level | Bathroom | 4-Piece | ||
| Main Level | Bedroom | 13'2 x 10'11 | ||
| Main Level | Living Room | 14'3 x 14'0 | ||
| Main Level | Dining Room | 9'7 x 9'0 | ||
| Main Level | Kitchen | 11'11 x 7'11 |
https://www.realtor.ca/real-estate/28742118/2659-6th-ave-port-alberni-port-alberni
Contact Us
Contact us for more information
David Pyle
Personal Real Estate Corporation
www.davidpyle.ca/
www.facebook.com/davidpylerealestate
www.linkedin.com/in/david-pyle-4641b326/
www.instagram.com/david_pyle_real_estate/
Box 1360-679 Memorial
Qualicum Beach, British Columbia V9K 1T4
(250) 752-6926
(800) 224-5906
(250) 752-2133
www.islandsbesthomes.com/























