9381 Chemainus Rd Chemainus, British Columbia V0R 1K5
$699,000
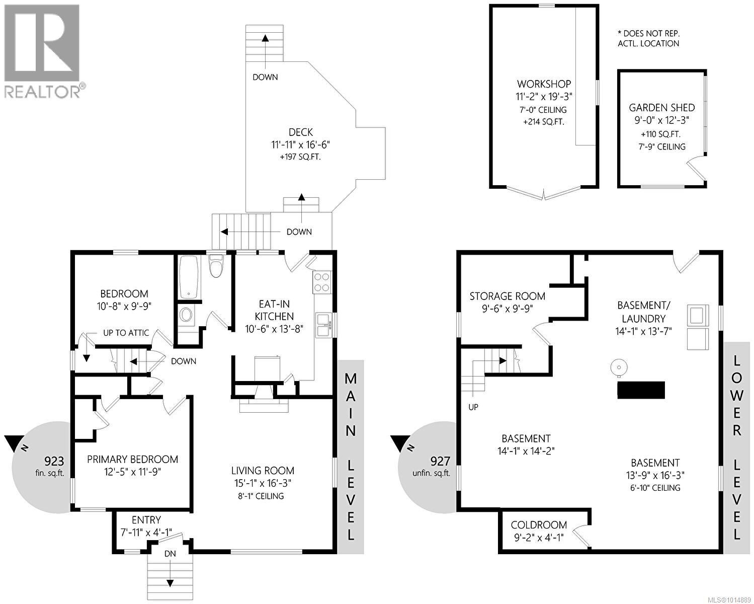
Very cute and well update 2 bedroom 1 bath character home in move in ready condition - this home has some beautiful hardwood flooring coved ceilings and arched doorways maintaining a charm to the house but with modern updated windows, heating system /heat pump and decor. Private rear yard with covered patios, storage and landscaping a single garage/workshop all backing onto a greenspace - Yard offers a really enjoyable outdoor space -Down stairs of house is 6'10'' so possible to add more rooms or have oodles of storage or room for hobbies - The detached lot next door is available to purchase as well (MLS # 1014890)-The home sits on .17 acre level and fully landscaped lot - Just minutes to downtown Chemainus and Fuller Lake and other forms of recreation are just a mile away as well as walking trails just across the road. This is a really super cute home that is ready to go (id:48643)
Property Details
| MLS® Number | 1014889 |
| Property Type | Single Family |
| Neigbourhood | Chemainus |
| Features | Partially Cleared, Other |
| Parking Space Total | 3 |
| Plan | Vip4515 |
| Structure | Shed, Workshop |
Building
| Bathroom Total | 1 |
| Bedrooms Total | 2 |
| Architectural Style | Character |
| Cooling Type | Air Conditioned |
| Fireplace Present | Yes |
| Fireplace Total | 1 |
| Heating Fuel | Natural Gas |
| Heating Type | Forced Air, Heat Pump |
| Size Interior | 1,850 Ft2 |
| Total Finished Area | 923 Sqft |
| Type | House |
Land
| Acreage | No |
| Size Irregular | 7405 |
| Size Total | 7405 Sqft |
| Size Total Text | 7405 Sqft |
| Zoning Type | Residential |
Rooms
| Level | Type | Length | Width | Dimensions |
|---|---|---|---|---|
| Main Level | Bathroom | 4-Piece | ||
| Main Level | Kitchen | 10'6 x 13'8 | ||
| Main Level | Bedroom | 10'8 x 9'9 | ||
| Main Level | Primary Bedroom | 12'5 x 11'9 | ||
| Main Level | Living Room | 15'1 x 16'3 | ||
| Main Level | Entrance | 7'11 x 4'1 |
https://www.realtor.ca/real-estate/28912681/9381-chemainus-rd-chemainus-chemainus
Contact Us
Contact us for more information
Michael Pickard
michaelpickard@remax.net/
www.facebook.com/michael.e.pickard
9745 Willow St.
Chemainus, British Columbia V0R 1K0
(250) 246-3700




















































