1355 Hodges Rd French Creek, British Columbia V9P 2B5
$2,195,000
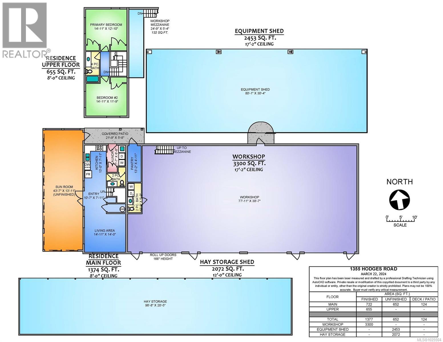
69.8-Acre Agricultural Investment – A rare opportunity to secure nearly 70 acres of level, cleared ALR land just minutes from downtown Parksville. Well suited for agriculture, equestrian use, or agri-business ventures. The property features a 3,300 sq ft fully finished and heated shop with 17 ft ceilings, four 14 ft overhead doors, in-floor heating, a 2-piece washroom with laundry, and mezzanine, ideal for equipment, storage, or light operations. An attached 1,377 sq ft, 2-bedroom, 2-bath residence with a 652 sq ft sunroom offers comfortable on-site living or staff quarters. Additional improvements include two large storage sheds (80x30 and 100x20), shelters, fenced pasture, irrigation ponds, hay fields, and a 7 GPM drilled well. A future building site allows for further expansion. An exceptional holding with strong infrastructure in a prime, strategic location. Contact the listing agent, Kirk Walper at 250-228-4275, for more information. (id:48643)
Property Details
| MLS® Number | 1025504 |
| Property Type | Other |
| Neigbourhood | French Creek |
| Features | Acreage, Central Location, Southern Exposure, Other, Marine Oriented |
| Parking Space Total | 10 |
| View Type | Mountain View |
Building
| Constructed Date | 2013 |
| Cooling Type | None |
| Heating Fuel | Electric |
| Size Exterior | 3200 Sqft |
| Type | Other |
Land
| Access Type | Road Access |
| Acreage | Yes |
| Size Irregular | 69.8 |
| Size Total | 69.8 Ac |
| Size Total Text | 69.8 Ac |
| Zoning Description | Ag1 Alr |
| Zoning Type | Unknown |
https://www.realtor.ca/real-estate/29340725/1355-hodges-rd-french-creek-french-creek
Contact Us
Contact us for more information
Kirk Walper
Personal Real Estate Corporation
www.youtube.com/embed/73tOMkamVF4
kirkwalper.com/
173 West Island Hwy
Parksville, British Columbia V9P 2H1
(250) 248-4321
(800) 224-5838
(250) 248-3550
www.parksvillerealestate.com/















































