2465 6th Ave Port Alberni, British Columbia V9Y 2J1
$499,000
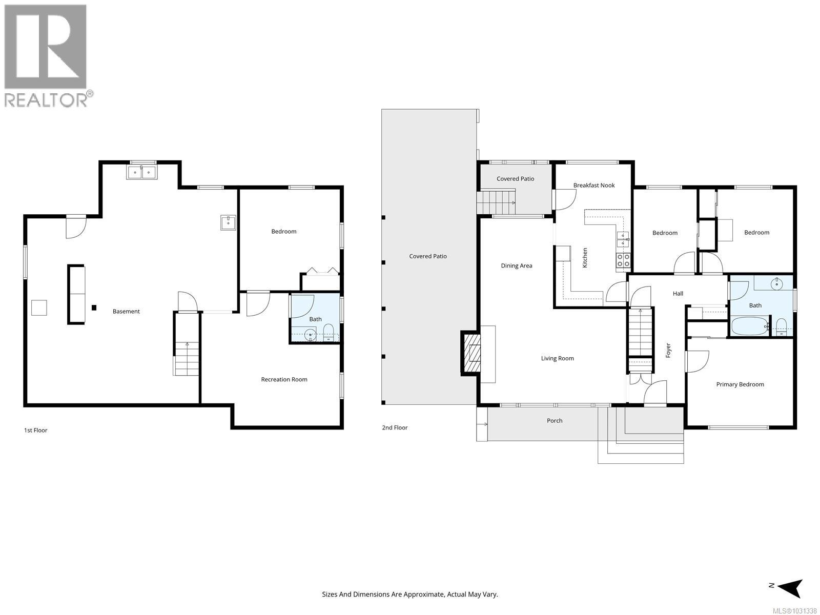
ATTENTION FIRST-TIME HOMEBUYERS- This may be the home for you. Located on a quiet street, this four-bedroom, two-bathroom home may be a great fit for those looking to enter the market and update over time. Entering the front door, you will find a spacious living area featuring a wood-burning fireplace, a separate dining area for family meals, and a cozy kitchen with an eating nook overlooking the backyard. The remainder of the main floor offers the primary bedroom, two more bedrooms, and a 4-piece bathroom. Downstairs, you will find the 4th bedroom, 3-piece bathroom, rec room, and huge unfinished space just waiting for your finishing ideas, a perfect place for a family room or man cave for watching the big games. Outside, you will find a fully fenced backyard with alley access, a greenhouse for your gardening needs, and a detached carport for parking. This may be the home you've been waiting for. Call to view this great home today!! (id:48643)
Property Details
| MLS® Number | 1031338 |
| Property Type | Single Family |
| Neigbourhood | Port Alberni |
| Features | Other |
| Parking Space Total | 4 |
| Plan | Vip12211 |
Building
| Bathroom Total | 2 |
| Bedrooms Total | 4 |
| Appliances | Range - Electric, Refrigerator |
| Constructed Date | 1963 |
| Cooling Type | None |
| Fireplace Present | Yes |
| Fireplace Total | 1 |
| Heating Fuel | Oil |
| Size Interior | 1,764 Sqft |
| Type | House |
Land
| Acreage | No |
| Size Irregular | 8276 |
| Size Total | 8276 Sqft |
| Size Total Text | 8276 Sqft |
| Zoning Type | Residential |
Rooms
| Level | Type | Length | Width | Dimensions |
|---|---|---|---|---|
| Lower Level | Bathroom | 3-Piece | ||
| Lower Level | Recreation Room | 18'1 x 17'4 | ||
| Lower Level | Bedroom | 13'1 x 13'3 | ||
| Main Level | Bedroom | 8'3 x 10'11 | ||
| Main Level | Bathroom | 4-Piece | ||
| Main Level | Bedroom | 12'3 x 10'11 | ||
| Main Level | Primary Bedroom | 13'10 x 11'4 | ||
| Main Level | Dining Nook | 9'10 x 6'5 | ||
| Main Level | Kitchen | 9'10 x 21'1 | ||
| Main Level | Dining Room | 9'6 x 11'10 | ||
| Main Level | Living Room | 21'2 x 12'4 |
https://www.realtor.ca/real-estate/29587671/2465-6th-ave-port-alberni-port-alberni
Contact Us
Contact us for more information
Dave Ralla
Personal Real Estate Corporation
www.daveralla.com/
4201 Johnston Rd.
Port Alberni, British Columbia V9Y 5M8
(250) 723-5666
(800) 372-3931
(250) 723-1151
www.midislandrealty.com/
















































