365 King Rd Gabriola Island, British Columbia V0R 1X1
$475,000
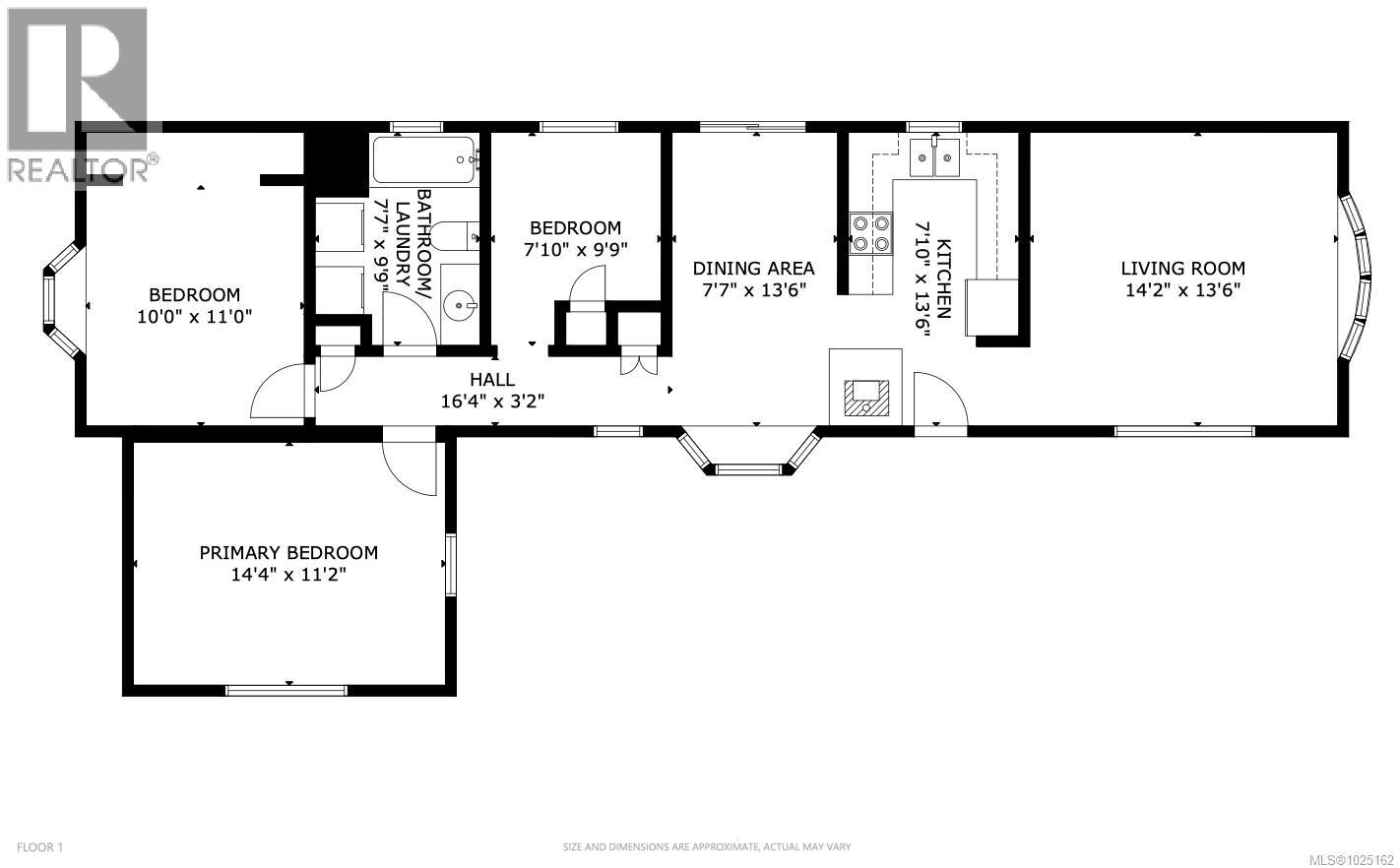
Tucked into a peaceful pocket in one of Gabriola’s most loved locations, this bright and welcoming 3-bedroom, 1-bath home offers comfortable island living just minutes from Twin Beaches, an extensive trail network, the general store, and the ferry. The 1,006 sq.ft. home features a functional layout with a spacious primary bedroom, heat pump, cozy woodstove, and an EPDM roof replaced in 2018. A covered deck off the dining area provides a lovely place to relax and overlook the yard, while meandering pathways and natural rockwork guide you through a beautiful blend of open space, native vegetation, and mature trees. A detached studio offers flexible space for guests, hobbies, or creative pursuits, complemented by a greenhouse, carport, and mostly fenced yard. Serviced by a well and cisterns, this is a comfortable and versatile property in a quiet, convenient setting.Full information package with floor plans, virtual tour and video available. All info to be verified by buyer if deemed important. (id:48643)
Property Details
| MLS® Number | 1025162 |
| Property Type | Single Family |
| Neigbourhood | Gabriola Island |
| Features | Central Location, Level Lot, Other |
| Parking Space Total | 3 |
| Plan | Vip21922 |
| Structure | Shed |
Building
| Bathroom Total | 1 |
| Bedrooms Total | 3 |
| Appliances | Dryer, Range - Electric, Refrigerator, Washer |
| Constructed Date | 1978 |
| Cooling Type | Wall Unit |
| Fireplace Present | Yes |
| Fireplace Total | 1 |
| Heating Fuel | Electric, Wood |
| Heating Type | Heat Pump |
| Size Interior | 1,006 Sqft |
| Type | Manufactured Home |
Land
| Access Type | Road Access |
| Acreage | No |
| Size Irregular | 0.55 |
| Size Total | 0.55 Ac |
| Size Total Text | 0.55 Ac |
| Zoning Description | Srr |
| Zoning Type | Residential |
Rooms
| Level | Type | Length | Width | Dimensions |
|---|---|---|---|---|
| Main Level | Primary Bedroom | 15 ft | 10 ft | 15 ft x 10 ft |
| Main Level | Other | 7'9 x 7'8 | ||
| Main Level | Bedroom | 10 ft | 8 ft | 10 ft x 8 ft |
| Main Level | Bedroom | 10'10 x 14'3 | ||
| Main Level | Bathroom | 10 ft | 10 ft x Measurements not available | |
| Main Level | Dining Room | 13'3 x 7'9 | ||
| Main Level | Kitchen | 8 ft | Measurements not available x 8 ft | |
| Main Level | Living Room | 14'2 x 13'3 | ||
| Other | Studio | 12'2 x 10'2 |
https://www.realtor.ca/real-estate/29471786/365-king-rd-gabriola-island-gabriola-island
Contact Us
Contact us for more information
Tina Lynch
www.gabriolarealestate.com/
www.linkedin.compubdirtinalynch/
1 - 575 North Road
Gabriola Island, British Columbia V0R 1X3
(250) 247-2088
(187) 742-2845
royallepagegabriola.ca/
www.facebook.com/royallepage
www.linkedin.com/company/royal-lepage
twitter.com/royal_lepage
Guy Parcher
www.gabriolarealestate.com/
1 - 575 North Road
Gabriola Island, British Columbia V0R 1X3
(250) 247-2088
(187) 742-2845
royallepagegabriola.ca/
www.facebook.com/royallepage
www.linkedin.com/company/royal-lepage
twitter.com/royal_lepage












































