4 1572 Seabird Rd Cassidy, British Columbia V9G 1L3
$289,900Maintenance,
$750 Monthly
Maintenance,
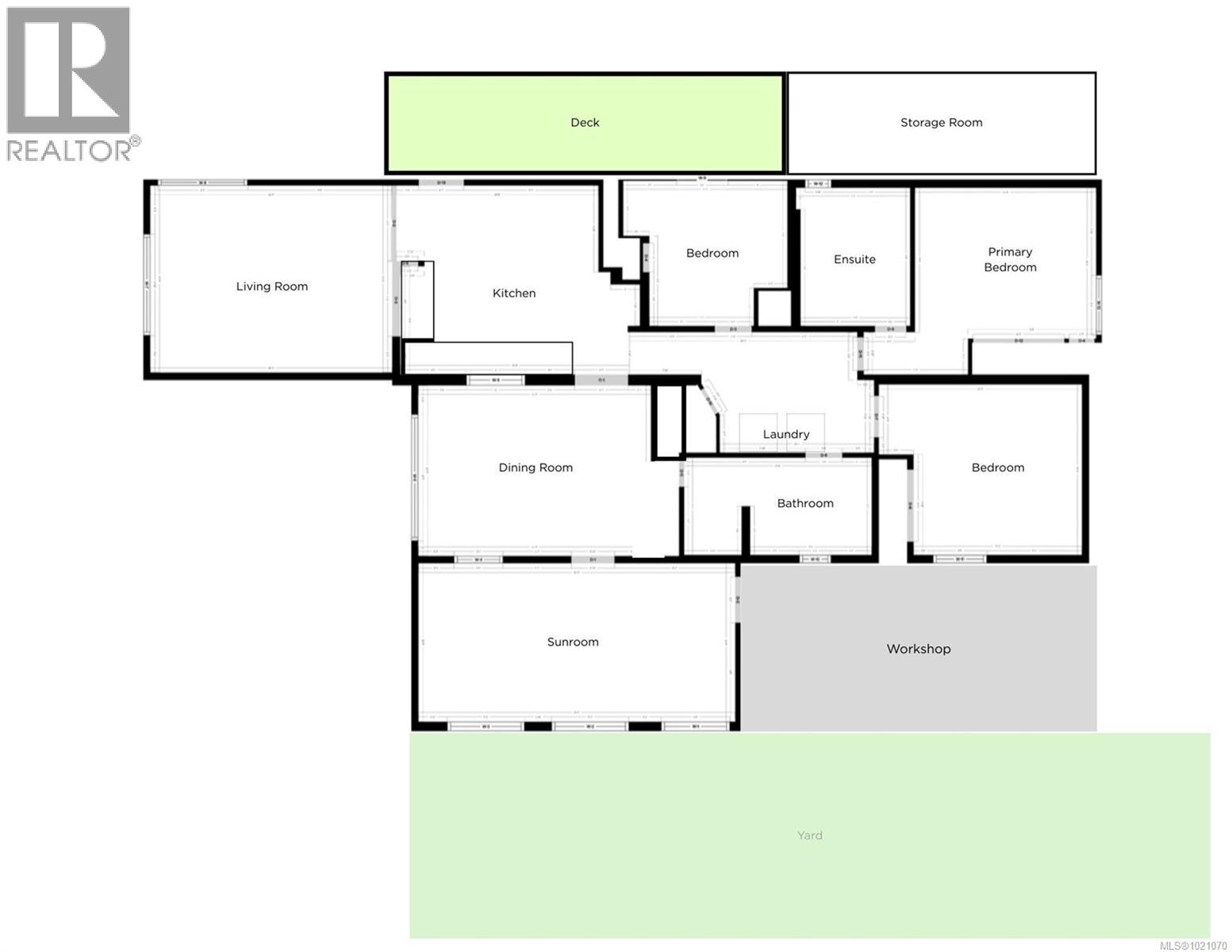
$750 MonthlyDiscover spacious, comfortable living in this well-kept 1,800 sq ft home located in a peaceful 55+ community just minutes from the Nanaimo Airport. Designed for ease, function, and plenty of room to enjoy your retirement years, this property offers an impressive layout with three bedrooms, two generously sized bathrooms, an eat-in kitchen with pantry, a formal dining room, a bright living room, and a dedicated storage room. A standout feature is the extra-large sunroom, perfect for year-round enjoyment and additional living space. Outdoor living is just as appealing, with two covered decks, one partially enclosed and featuring three sturdy workbenches and bonus storage. The property also includes two covered parking spaces, two storage sheds, and a small greenhouse. Gardeners will appreciate the mostly fenced yard with multiple raised and enclosed garden beds, along with an impressive collection of perennial edibles such as strawberries, raspberries, blueberries, grapes, asparagus, walking onions, chamomile, echinacea, and a variety of culinary herbs. Whether you’re an experienced gardener or simply enjoy the beauty of a thriving outdoor space, this property offers endless potential. Close to amenities, walking trails, beaches, and transit, this home combines comfort, convenience, and a welcoming community atmosphere. With abundant indoor and outdoor space, it offers an ideal setting for those seeking a relaxed Vancouver Island lifestyle. (id:48643)
Property Details
| MLS® Number | 1021070 |
| Property Type | Single Family |
| Neigbourhood | Extension |
| Community Features | Pets Allowed With Restrictions, Age Restrictions |
| Features | Other |
| Parking Space Total | 2 |
| Structure | Greenhouse, Workshop |
Building
| Bathroom Total | 2 |
| Bedrooms Total | 3 |
| Constructed Date | 1980 |
| Cooling Type | Air Conditioned |
| Fireplace Present | Yes |
| Fireplace Total | 1 |
| Heating Fuel | Electric |
| Heating Type | Forced Air, Heat Pump |
| Size Interior | 2,039 Ft2 |
| Total Finished Area | 1820 Sqft |
| Type | Manufactured Home |
Parking
| Stall |
Land
| Access Type | Road Access |
| Acreage | No |
| Zoning Description | R6 |
| Zoning Type | Multi-family |
Rooms
| Level | Type | Length | Width | Dimensions |
|---|---|---|---|---|
| Main Level | Workshop | 22'3 x 9'10 | ||
| Main Level | Storage | 23'7 x 5'10 | ||
| Main Level | Sunroom | 23'5 x 10'3 | ||
| Main Level | Dining Room | 16'4 x 11'8 | ||
| Main Level | Laundry Room | 5'4 x 4'11 | ||
| Main Level | Bathroom | 3-Piece | ||
| Main Level | Bedroom | 14'3 x 11'9 | ||
| Main Level | Ensuite | 3-Piece | ||
| Main Level | Primary Bedroom | 13'1 x 12'1 | ||
| Main Level | Bedroom | 9'11 x 9'5 | ||
| Main Level | Kitchen | 15'9 x 13'3 | ||
| Main Level | Living Room | 17'6 x 13'2 |
https://www.realtor.ca/real-estate/29133104/4-1572-seabird-rd-cassidy-extension
Contact Us
Contact us for more information
Nicole Hindman
www.nanaimoneighbourhoods.ca/
4200 Island Highway North
Nanaimo, British Columbia V9T 1W6
(250) 758-7653
(250) 758-8477
royallepagenanaimo.ca/
Garet Hindman
nanaimoneighbourhoods.ca/
4200 Island Highway North
Nanaimo, British Columbia V9T 1W6
(250) 758-7653
(250) 758-8477
royallepagenanaimo.ca/













