7800 Pacific Rim Hwy Port Alberni, British Columbia V9Y 8Y7
$1,199,000
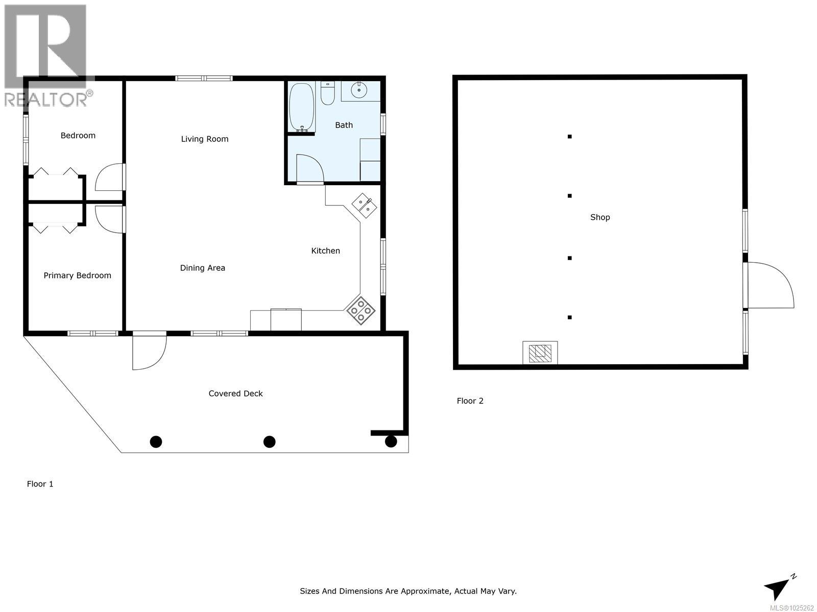
Nestled high on a peaceful mountainside, this charming two-bedroom, one-bath rancher offers the perfect blend of rustic simplicity and natural beauty. Set on 19.27 private acres, this property features expansive views, mature trees, and room to roam—ideal for those seeking solitude and homesteading potential. Entering the front door, you will notice the open-concept living area, boasting a woodstove for those cold winter days, a custom kitchen with live-edge cabinets and countertops, new appliances, and access to the covered patio just steps away —a perfect place to enjoy your morning coffee. The rest of the interior offers a spacious primary bedroom, 2nd bedroom, 4-piece bathroom, and laundry room. Outside, you will find a foundation already in place for a future home offering a covered shop area for your toys, and covered RV parking for a 30 ft trailer. If you're looking for a peaceful, private location, surrounded by trees and mountain views, this may be the home for you!! (id:48643)
Property Details
| MLS® Number | 1025262 |
| Property Type | Single Family |
| Neigbourhood | Sproat Lake |
| Features | Acreage, Private Setting, Wooded Area, Other |
| Parking Space Total | 6 |
| Plan | Vip1647 |
Building
| Bathroom Total | 1 |
| Bedrooms Total | 2 |
| Appliances | Dishwasher, Dryer, Stove, Refrigerator, Washer |
| Constructed Date | 2005 |
| Cooling Type | None |
| Fireplace Present | Yes |
| Fireplace Total | 1 |
| Heating Fuel | Electric, Wood |
| Heating Type | Baseboard Heaters |
| Size Interior | 936 Sqft |
| Type | House |
Land
| Acreage | Yes |
| Size Irregular | 19.27 |
| Size Total | 19.27 Ac |
| Size Total Text | 19.27 Ac |
| Zoning Description | A2 |
| Zoning Type | Residential |
Rooms
| Level | Type | Length | Width | Dimensions |
|---|---|---|---|---|
| Main Level | Bathroom | 4-Piece | ||
| Main Level | Bedroom | 9'1 x 11'7 | ||
| Main Level | Primary Bedroom | 9'1 x 12'4 | ||
| Main Level | Kitchen | 9'4 x 14'1 | ||
| Main Level | Dining Room | 15'4 x 12'4 | ||
| Main Level | Living Room | 15'4 x 11'11 |
https://www.realtor.ca/real-estate/29332829/7800-pacific-rim-hwy-port-alberni-sproat-lake
Contact Us
Contact us for more information
Dave Ralla
Personal Real Estate Corporation
www.daveralla.com/
4201 Johnston Rd.
Port Alberni, British Columbia V9Y 5M8
(250) 723-5666
(800) 372-3931
(250) 723-1151
www.midislandrealty.com/







































































